魚缸改造的藝術與科學魚缸改造的藝術原則和科學原理:定制魚缸不允許開孔怎么辦?
本文聚焦于魚缸改造的藝術與科學領域,著重探討當定制魚缸不允許開孔時所面臨的難題及應對策略,在藝術層面,強調依據整體美學風格進行布局設計、色彩搭配以及造景元素的巧妙運用,以營造獨特視覺效果;從科學角度出發,則需深入理解水循環、過濾系統、光照和溫度等原理,確保魚兒生存環境的健康穩定,針對無法開孔的限制條件,詳細介紹了如利用邊緣空間安裝微型設備、采用無線傳輸技術控制裝置等多種創新解決方案,旨在實現功能與美觀的平衡,為愛好者提供實用且富有創意的改造思路,助力打造出既符合審美又利于魚類生長的理想
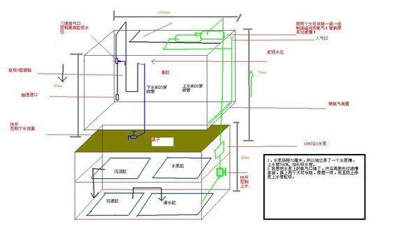
虹吸式底濾的原理與應用虹吸式底濾是一種利用虹吸原理將魚缸中的水流引入過濾裝置的過濾方式,它不需要在魚缸上打孔,因此對于不想破壞魚缸完整性的人來說是一個不錯的選擇,這種過濾方式通常包括一個排水管和一個過濾盒,通過調整水位來實現水流的控制,了解虹吸式底濾的工作原理和適用場景,可以幫助養魚愛好者更好地維護水質,同時也能提升魚缸的整體美觀度,???

魚缸不開孔的解決方案
如果您定制的魚缸不允許開孔,仍然有幾種方法可以實現有效的過濾。以下是幾種可能的解決方案:
1. 使用外置過濾桶
如果您的魚缸底部不打孔,可以考慮使用外置桶進行過濾。這種方法簡單易行,但可能需要定期清理外置桶以確保過濾效果。
2. 虹吸式底濾系統
虹吸式底濾系統是一種無需打孔的過濾方式。您可以購買現成的虹吸式底濾系統,或者根據自己的需求自制。需要注意的是,虹吸式底濾不適合用于海水缸。
3. 安裝免打孔底部過濾器
市場上有一些免打孔的底部過濾器可供選擇。例如,上海樂美水族設計的外掛式底部過濾系統,它具有安全可靠、安裝簡單、使用方便等特點。
4. 利用魚缸隔板
如果您想在魚缸中加入隔板來改善水流流動性,可以選擇不打孔的方式。例如,您可以使用轉眼的隔板,或者在魚缸中提高一個2-3厘米的物體來改善水流。
5. 制作自制不開孔底濾
您還可以根據自己的需求制作自制不開孔底濾。這種方法需要一些手工技巧,但可以實現個性化的過濾方案。您可以使用一寸的排水管、軟膠管、直角彎頭和三通等材料來制作過濾系統。
6. 虹吸溢流
虹吸溢流是一種利用虹吸原理來過濾水質的方法。這種方法可以在不打孔的情況下實現底濾功能,并且可以調整水位和流量。
綜上所述,即使您的定制魚缸不允許開孔,仍然有多種方法可以實現有效的過濾。您可以根據自己的需求和條件選擇最適合的方案。

延伸閱讀延伸閱讀發送??虹吸式底濾的原理與應用虹吸式底濾是一種利用虹吸原理將魚缸中的水流引入過濾裝置的過濾方式。它不需要在魚缸上打孔,因此對于不想破壞魚缸完整性的人來說是一個不錯的選擇。這種過濾方式通常包括一個排水管和一個過濾盒,通過調整水位來實現水流的控制。了解虹吸式底濾的工作原理和適用場景,可以幫助養魚愛好者更好地維護水質,同時也能提升魚缸的整體美觀度。???DIY魚缸過濾系統的創意與技巧對于喜歡動手的養魚者來說,自制魚缸過濾系統是一個充滿樂趣和創造力的過程。這不僅涉及到材料的選擇和組合,還包括對水流動力學的理解。通過學習如何利用不同類型的濾材、管道和控制器來構建高效的過濾系統,養魚者可以打造出既符合個人審美又滿足魚類健康需求的獨特魚缸環境。??魚缸過濾技術的歷史演變魚缸過濾技術的發展歷程反映了人類對水族生態環境認識的不斷深化。從最初的簡單過濾到現在的復雜生態循環系統,每一次技術革新都帶來了養魚體驗的新飛躍。探索魚缸過濾技術的歷史演變,不僅能了解到這一領域的技術進步,還能啟發我們對未來水族生態環境設計的思考。??魚缸改造的藝術與科學魚缸改造不僅僅是一項技術活,更是一門藝術創作。通過改造魚缸,養魚者可以將自己的想象力和創造力發揮到極致,創造出獨一無二的水下世界。了解魚缸改造的藝術原則和科學原理,可以幫助養魚者在追求美觀的同時,確保魚類的健康和舒適。加載更多
推薦閱讀:
魚缸用增氧泵價格是多少:魚缸增氧機-xtrac增氧機-xtrac增氧機

發表評論